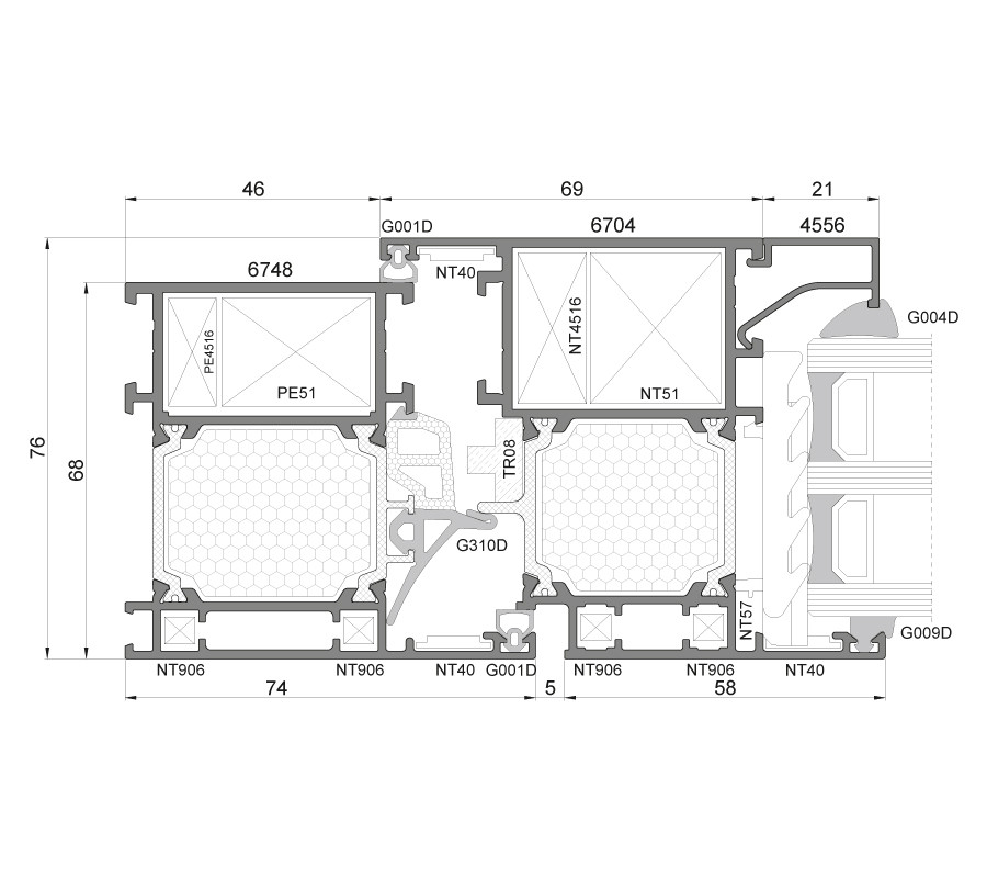
Varianta systému PE68 HI o tříkomorové konstrukci profilů s drážkou pro kování ve standardu „euro“ a drážkou pro kování používaných na oknech a balkonových dveřích vyrobené z PVC či dřeva. Konstrukční hloubka rámu je 68 mm a hloubka křídla je 76 mm. Systém umožňuje použití výplní o tloušťce 18-59 mm. Z jeho hlavních nesporných výhod je zvýšení tepelného komfortu, který je dosažen osazením speciální izolační vložky.
V závislosti na umístění, v kterém je zakomponovaná dodatečná výplň, systém dosáhne jinou hodnotu součinitele prostupu tepla. Ve verzi PE68 HI s uzavřenou podskelní komorou a tepelně izolační výplní v komoře profilu Uf dosahuje hodnoty 1,3 W/m2K.
Hliníkové profily
EN AW-6060 podle PN-EN 573-3 stav T6 dle PN-EN 515 Al Mg Si 0,5 F22 dle normy DIN 1725 T1, DIN 17615 T1.
Tepelně izplační vlastnosti
Rámový součinitel prostupu tepla Uf = od 1,3 W/m2K.
Výplně
Jednoduché nebo vícenásobné zasklení s jakýmkoliv druhem skla nebo neprůhledným panelem.
Povrchová úprava
Práškovými polyesterovými barevnými nátěrovými hmotani splňující požadavky Qualicoat, v barevných odstínech podle RAL; anodoce (elox) v odstínech přírodní hliník, olivově zelená, šampaň, zlatá, starozlatá, hnědá - splňující požadavky Qualanod; lakování v barvě dřevodekoru.
Těsnění
Ze syntetické pryže EPDM dle normy 7863 a prováděcí normy dle ISO 3302-01, E2.
Příslušenství
Rohové připojení, vruty, šrouby, podložky z hliníku, nerezu nebo pozinkované oceli.
Kování
Pouze od renomovaných firem: Savio, Sobinco, Winkhaus apod.
Osvědčení a certifikáty kvality
Počáteční zkoušky typu dle PN-EN 14351-1.