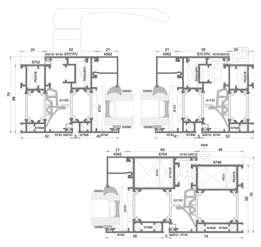
Systém v provedení tříkomorové konstrukce profilu s drážkou pro kování ve standardu „euro” a drážkou pro kování používaných na oknech a balkonových dveřích vyrobené z PVC či dřeva. Konstrukční hloubka rámu je 68 mm a hloubka křídel je 76 mm.
Zoptimalizovaný přerušení tepelného mostu o tl. 32 mm a jedno i dvousložkové centrální těsnění, to vše zaručuje vysoké tepelně technické parametry. Ve verzi PE68+ s vyplněnou podskelní komorou Uf dosahuje hodnoty od 1,5 W/m2K.
Díky moderním těsnícím elementům není třeba používat okapničku, což výrazně pozitivně ovlivňuje vzhled a estetičnost prvku.
Systém umožňuje použít širokou škálu kování i s jejich snadnou instalací. Tří-komorová konstrukce profilu Ponzio PE68 poskytuje vysokou tuhost profilů, a tak umožňuje provádět výstavbu konstrukcí o značně velkých rozměrech.
Charakteristika
- kompatibilita s jinými systémy rodiny Ponzio,
- možnost slícování okenních křídel (jedna rovina na vnější straně),
- použití moderních dvoukomponentních těsnění z EPDM,
- ohýbání profilů,
- mnoho způsobů provedení rohových spojů.
Hliníkové profily
EN AW-6060 podle PN-EN 573-3 stav T6 dle PN-EN 515 Al Mg Si 0,5 F22 dle normy DIN 1725 T1, DIN 17615 T1.
Těsnění
Ze syntetické pryže EPDM dle normy 7863 a prováděcí normy dle ISO 3302-01, E2.
Kování
Pouze od renomovaných firem: Sobinco, Savio, Winkhaus apod.
Výplně
Jednoduché nebo vícenásobné zasklení s jakýmkoliv druhem skla nebo neprůhledným panelem. V systému můžou být použité výplně o tloušťce 18 až 59 mm.
Povrchová úprava
Práškovými polyesterovými barevnými nátěrovými hmotani splňující požadavky Qualicoat, v barevných odstínech podle RAL; anodoce (elox) v odstínech přírodní hliník, olivově zelená, šampaň, zlatá, starozlatá, hnědá - splňující požadavky Qualanod; lakování v barvě dřevodekoru.
Tepelně izolační vlastnosti
Rámový součinitel prostupu tepla Uf od 1,5 W/m2K.
Osvědčení a certifikáty kvality
Počáteční zkoušky typu dle PN-EN 14351-1.
Třída bezpečnosti: Třída RC2 dle PN-EN 1627:2011 , Třída RC3 dle PN-EN 1627:2012.