Tepelně izolovaný tříkomorový systém určený k provádění konstrukcí dveří. Systém má slícovanou strukturu profilů (velikost vnitřní drážky je 18 mm) a možnost použití zasklívacích lišt do drážky ve standardu euro.
V PE68 jsou použity profilové tepelně přerušovací vložky tl. 24 mm.
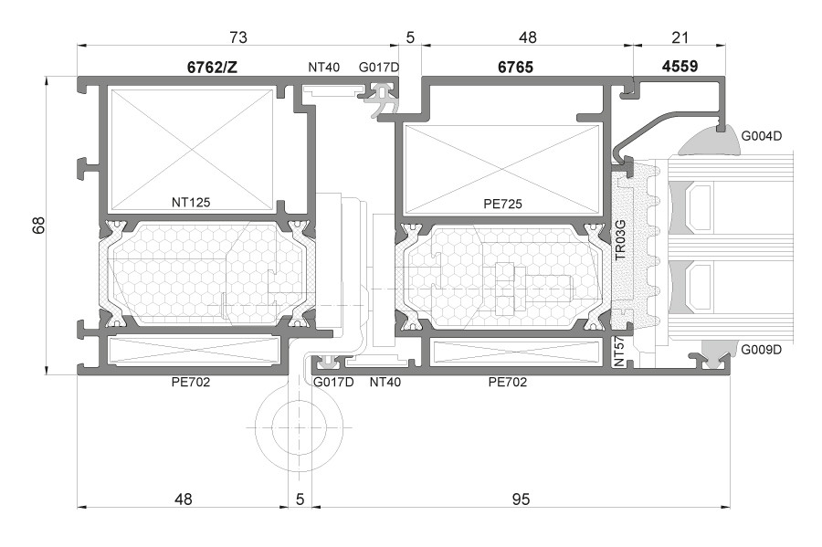
Speciálně konstruované, kompatibilní profily umožňují snadné napojení dveří v jakémkoliv místě. Konstrukční hloubka rámu a křídla je 68 mm.
Systém dává možnost zasklení dvojsklem či trojsklem a to do tl. 51 mm.
Rámový součinitel prostupu tepla je 1,5 do 2,1 W/m2K.
Systém umožňuje použít širokou škálu kování a zámků dveří. PE68 dovoluje provádět rohové spoje lisováním nebo šroubením.
Do dveří můžete zvolit libovolnou výplň, která bude přesně lahodit Vaším představám:
V případě, že si nevyberete ze standartní nabídky, tak si můžete vybrat z nebo vyzkoušet konfigurátor od firmy
Dále je možné u dveří zvolit možnosti
