- Profil třídy A

- Design vnímán klasickou optikou
- Ideální do bytů
- Hodnota prostupu celé výplně až Uw = 0,93W/m2.K
- Možnost běžného sváru nebo V-PERFECT
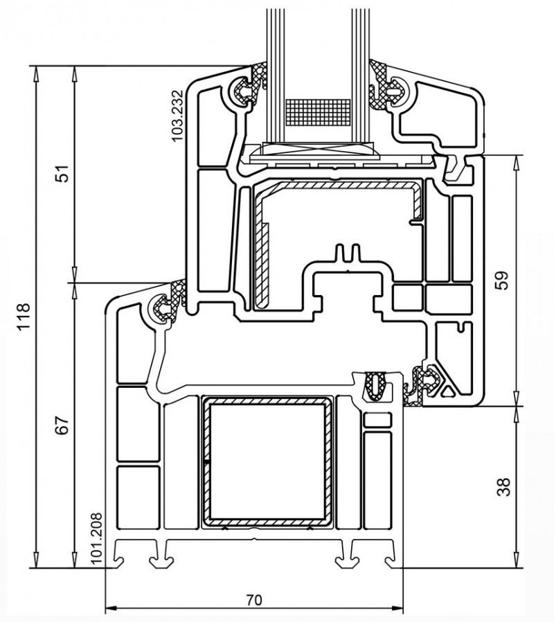
Pětikomorový profil třídy A silný 70 mm a se silou vnějších stěn >2,8mm zajišťuje velmi dobou tepelnou izolaci Vašeho domu. Systém dvou těsnění dbá o těsnost a optimální akustickou izolaci a osvědčené kování Maco Multimatic zvyšuje bezpečnost proti vloupání. Perfektní okna této řady oceňují klienti po celé Evropě.
Profil
- 5komorový profil renomované německé firmy VEKA, síla stěn v nejvyšším standardu kvality podle PN-EN 12608 „třída A“, profil se šíř. zapuštění 70mm, dostupný v široké paletě základních barev (bílá, winchester, dub bahenní, ořech, mahagon, zlatý dub, sienna rosso, tmavě šedá (antracit)) a 17 doplňujících barev a v úplné škále barev RAL.
Těsnění
- EPDM (Etylo-propylenovo-dienové-monomery) – se vyznačují výrazně lepšími parametry z oblasti odolností vůči stárnutí, působení vysoké teploty a odolnosti vůči působení vnějších faktorů. Navíc těsnění zhotovená z EPDM nepraskají, jsou odolná vůči působení ozónu, vyznačují se skvělou pevností v tahu, pevností v tlaku, odolností vůči roztržení, jsou dostupné v černé barvě – na přání také v karamelové nebo šedé barvě.
Zesílení
- okna v základní verzi mají zesílení z pozinkované oceli v uzavřeném ostění (1.5mm) a křídle, speciálně ohýbané, s výjimečnou odolností (1.25 mm). Jde o nejdůležitější součást, která zaručuje dlouholeté, spolehlivé fungování oken
Skla
- V standardu balíček skel 4/16/4 se součinitelem Ug=1,1 podle EN673
- Možnost zasklení trojsklem Ug=0,7
Kování
osvědčené kování Maco zajišťující oknům těsnost, v standardu s:
- závěsem proti vypáčení komplikujícím vypáčení křídla a činícím okno bezpečnější
- klasická, pohodlně se používající hliníková klika
- každé rozevírací a výklopné křídlo je vybaveno mikroventilací, díky které zajišťujeme kontrolu ventilace místnosti a zaručuje tak dobré zdraví a vlastní pocit
Doplňky
- podparapetní lišta – chrání hrany rámu před poškozením během přepravy a montáže, navíc umožňuje správnou montáž parapetu
- přepravní držák
Volitelně
- klika Hoppe Secustic Tokyo a London, v níž byl poprvé použit mechanismus blokující otočení kliky, což navíc chrání okno před pokusy o vloupání a posunutím prvků zajištění kování zvenku místnosti
- neviditelné kování a závěsy kování proti vloupání v třídě RC1 a RC2
- „teplý rámeček”, který zlepšuje tepelnou izolaci na okrajích skla a snižuje riziko, že se zde bude vyskytovat dočasná kondenzace vodní páry. Ve výsledku může být přípustná relativní vlhkost vzduchu o cca 10-15% vyšší
- laminovaná bezpečnostní skla ztěžující vloupání, třídy P2, P4
- ornamentální, reflexní skla
- energeticky úsporný dvoukomorový balíček skel 4/12/4/12/4 se součinitelem Ug=0,7 EN673
