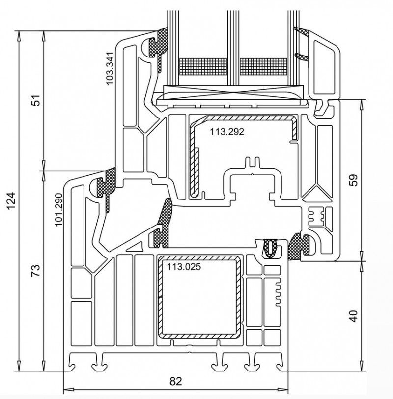
- Hloubka zapuštění 82mm
- Balíček se 3 skly
- Až 7komorový profil
- tepelná hodnota výplně až Uw = 0,67 W/m2K
- Možnost běžného sváru nebo V-PERFECT
Nižší konstrukce, balíček se třemi skly, dokonalá tepelná izolace a ideální statika a bezpečnost! Seznamte se s naší novinkou Veka Softline 82 – vícekomorovým systémem s hloubkou zapuštění 82 mm. Dokonalé odvádění vody, ochrana před pronikáním vlhkosti a vzduchu díky speciálnímu systému promyšlených těsnění.
Profil
- vícekomorový profil renomované německé firmy VEKA, síla stěn v nejvyšším standardu kvality podle PN-EN 12608 „třída A“, profil se šíř. zapuštění 82 mm, dostupný v široké paletě základních barev (bílá, winchester, dub bahenní, ořech, mahagon, zlatý dub, sienna rosso, tmavě šedá (antracit)) a 17 doplňujících barvách a v úplné škále barev RAL.
Těsnění
- EPDM (Etylo-propylenovo-dienové-monomery) – se vyznačují výrazně lepšími parametry z oblasti odolností vůči stárnutí, působení vysoké teploty a odolnosti vůči působení vnějších faktorů. Navíc těsnění zhotovená z EPDM nepraskají, jsou odolná vůči působení ozónu, vyznačují se skvělou pevností v tahu, pevností v tlaku, odolností vůči roztržení, jsou dostupné v černé barvě – na přání také v karamelové nebo šedé barvě.
Skla
- V standardu balíček skel 4/18/4/18/4 s Ug=0,5 W/m2K podle EN673
Kování
osvědčené kování Maco zajišťující oknům těsnost, v standardu s:
- závěsem proti vypáčení komplikujícím vypáčení křídla a činícím okno bezpečnější
- klasická, pohodlně se používající hliníková klika
- každé rozevírací a výklopné křídlo je vybaveno mikroventilací, díky které zajišťujeme kontrolu ventilace místnosti a zaručuje tak dobré zdraví a vlastní pocit
Doplňky
- podparapetní lišta – chrání hrany rámu před poškozením během přepravy a montáže, navíc umožňuje správnou montáž parapetu
- přepravní držák
Volitelně
- klika Hoppe Secustic Tokyo a London, v níž byl poprvé použit mechanismus blokující otočení kliky, což navíc chrání okno před pokusy o vloupání a posunutím prvků zajištění kování zvenku místnosti
- neviditelné kování a závěsy
- kování proti vloupání v třídě RC1 a RC2
- „teplý rámeček”, který zlepšuje tepelnou izolaci na okrajích skla a snižuje riziko, že se zde bude vyskytovat dočasná kondenzace vodní páry. Ve výsledku může být přípustná relativní vlhkost vzduchu o cca 10-15% vyšší
- laminovaná bezpečnostní skla ztěžující vloupání, tř. P2, P4
- ornamentální, reflexní skla
